Active MLS# 25079781 4 Days on Market

1151 Illiniwek Drive, Mascoutah, IL 62258

Subdivision: Chief View Estates

List Price: $600,000

6

Bedrooms

3

Baths

2,400

Area (sq.ft)

$N/A

Cost/sq.ft

1 Story

Type

Description

Welcome to this rare and spacious one-story home offering 6 bedrooms, 3 full baths, and an impressive 4,200 square feet of living space—all set on a beautifully landscaped 1-acre lot in the highly desirable Mascoutah School District. Built just nine years ago and meticulously maintained by its original owner, this property blends generous room sizes, thoughtful upgrades, and exceptional outdoor living spaces. Step inside to find a split bedroom layout designed for both everyday comfort and easy entertaining. The heart of the home features a large, inviting living area anchored by a stunning fireplace. The kitchen is equally remarkable, offering abundant cabinet space, a true walk-in pantry, and plenty of room for cooking, gathering, and hosting. The open flow between the kitchen, dining, and living areas ensures everyone stays connected. All six bedrooms are unusually spacious—much larger than the typical bedroom sizes found in most homes—offering incredible flexibility whether you need guest rooms, home offices, hobby rooms, or multi-generational living arrangements. With three full bathrooms, convenience is never in short supply. A major highlight of this property is the full dry basement finished with a wet bar, family room, 3 bedrooms, and a full bath. Outdoor living shines just as brightly here. Start with the screened in porch off the dining area and then extend into the expansive backyard that is thoughtfully landscaped and includes a pergola-covered patio perfect for relaxing in the shade or hosting friends and family. A built-in firepit creates a cozy place to gather year-round, and the 1-acre lot offers room to roam, play, garden, or simply enjoy the privacy and space that are increasingly hard to find. Homes of this size, quality, and layout—especially with six bedrooms and single-story living—are exceptionally uncommon. Add in the top-tier Mascoutah School District, and this property becomes a standout opportunity. Spacious, well-cared-for, and designed for both comfort and versatility, this home has everything you’ve been looking for—and more.

Property Information

List Price $ 600,000
Original Price $ 600,000
Status Active
MLS# 25079781
Bedrooms 6
Full baths 3
Half baths 0
Main Floor Full Baths 3
Sq. Ft. Above 2,400
Lot Size 0
Acres 1
Subdivision Chief View Estates
Municipality Mascoutah
School District Mascoutah DIST 19
County St Clair-IL
Property Type Residential
Style 1 Story
Style Description
Transaction Type
Special Conditions Standard
Type
Building Exterior Amenities
Building Style Ranch,Traditional
Ownership Private
Special Description Standard
Appliances Some Stainless Steel Appliance(s),Dishwasher,Microwave,Free-Standing Range,Free-Standing Refrigerator
Miscellaneous
Disclosures Seller Property Disclosure
Age 0
Sewer Main Size Public Sewer
Water Main Size Public
Conditions Seller Property Disclosure

Additional Information

Elementary School MASCOUTAH DIST 19
Jr. High School MASCOUTAH DIST 19
Sr. High School Mascoutah
Association Fee None
Architecture Ranch,Traditional
Construction Brick Veneer,Vinyl Siding
Garage Spaces 3
Carport Spaces 0
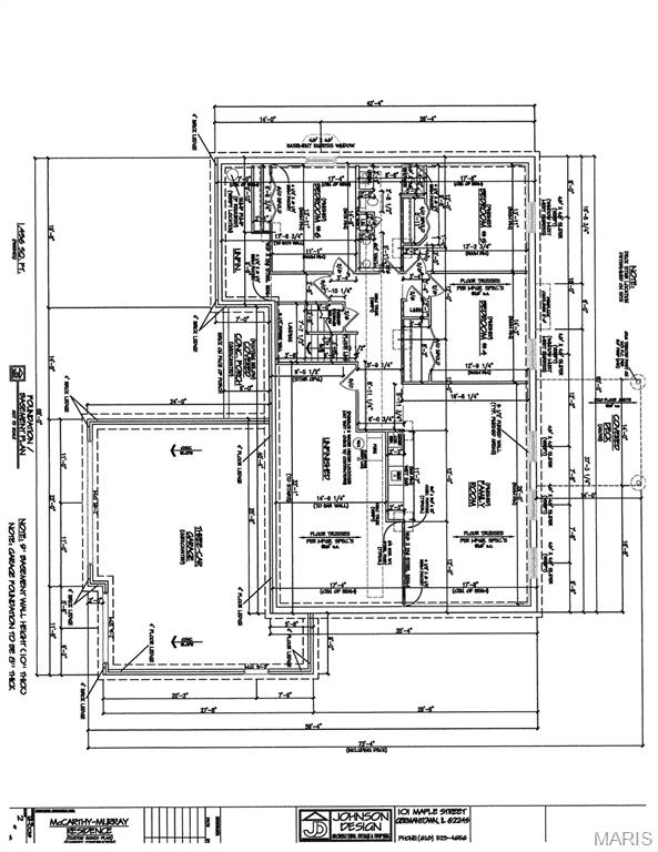
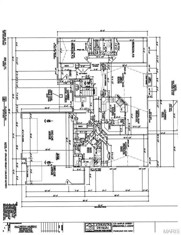
Basement Description Bathroom,Daylight,Partially Finished,Full,Sleeping Area
Fireplace Type Great Room,Wood Burning
Fireplace Location
Lot Dimensions 166x225x215x147x113
Special Areas
Cooling Central Air
Sewer Public Sewer Sewer
Heating Forced Air
Water Public
Heat Source
Kitchen
Appliances Stainless Steel Appliance(s),Dishwasher,Microwave,Free-Standing Range,Free-Standing Refrigerator
Dining
Interior Decor Open Floorplan,Solid Surface Countertop(s),Walk-In Closet(s),Walk-In Pantry,Wet Bar
Property Tax $13,599

Map Location

Room Dimensions

Room Dimensions (sq.rt)
Great Room (Level-Main) 20 x 15
Breakfast Room (Level-Main) 17 x 10
Kitchen (Level-Main) 13 x 10
Primary Bedroom (Level-Main) 14 x 18
Primary Bathroom (Level-Main) 16 x 14
Bedroom 2 (Level-Main) 11 x 14
Bedroom 3 (Level-Main) 14 x 11
Bathroom 2 (Level-First) 7 x 7
Bedroom 4 (Level-Basement) 14 x 13
Bedroom 5 (Level-Basement) 14 x 13
Bedroom (Level-Basement) 14 x 13
Family Room (Level-Basement) 29 x 17
Bathroom 3 (Level-Lower) 14 x 9
Laundry (Level-Main) 8 x 9

Listing Courtesy of Re/Max Signature Properties - steve.bennett02@gmail.com