Closed MLS# 26002260 42 Days on Market

2329 Park Avenue, St Louis City, MO 63104

Subdivision: Park Condo

List Price: $285,000

Login/Signup to see SOLD Price

3

Bedrooms

2

Baths

1,608

Area (sq.ft)

$N/A

Cost/sq.ft

2 Story

Type

Description

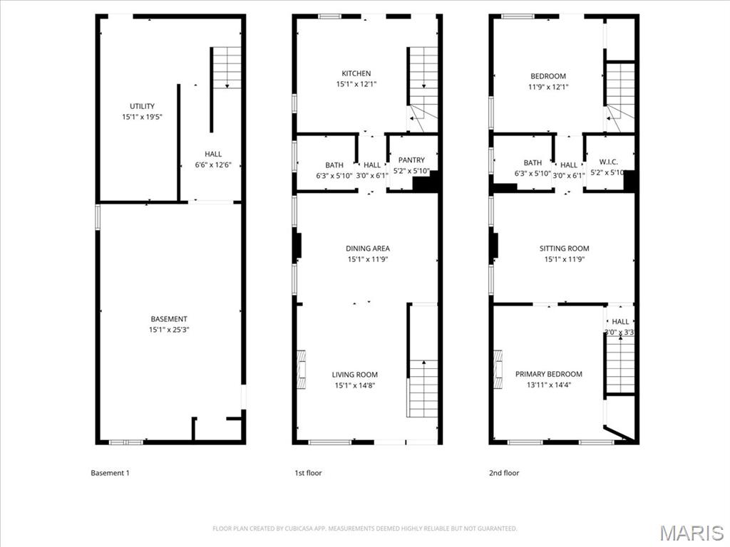
Townhouse living in Lafayette Square without the hoa fees! This charming brick two story oozes with character, offers functional updates, and is priced well below the active comps. Situated just one block from Lafayette Park, the fenced brick courtyard welcomes you to the open first level floorplan. Upon entering, you will notice the large, historic millwork, decorative fireplace and wood floors. The living room opens to the formal dining room flaunting coffered ceilings and a handmade chandelier. The kitchen boasts custom cabinetry & countertops, SS appliances, pantry, and provides access to the lower level deck. The main level bathroom features a classic soaking tub for you or your furry friends :) The upper level can be accessed via the front or rear staircases. The second level contains one bedroom with wood floors and another decorative fireplace. The second bedroom has a walk in closet and access to the covered/enclosed upper level deck. In between the two bedrooms is an updated bathroom and a large sitting room/den that is classified as a third bedroom per public records. Other highlights include a detached one car garage, fresh paint throughout, new TPO roof, newer HVAC system (condenser units have been moved to allow for easy servicing). Occupancy inspection has been passed.

Property Information

Original Price $ 285,000
Status Closed
MLS# 26002260
Bedrooms 3
Full baths 2
Half baths 0
Main Floor Full Baths 2
Sq. Ft. Above 1,608
Lot Size 0
Acres 0
Subdivision Park Condo
Municipality St Louis City
School District St. Louis City
County St Louis City
Property Type Residential
Style 2 Story
Style Description
Transaction Type
Special Conditions Standard
Type
Building Exterior Amenities
Building Style Historic
Ownership Private
Special Description Standard
Appliances Some Dishwasher,Disposal,Ice Maker,Free-Standing Gas Oven
Miscellaneous
Disclosures Flood Plain No,Occupancy Permit Required,See Seller's Disclosure
Age 0
Sewer Main Size Public Sewer
Water Main Size Public
Conditions Flood Plain No,Occupancy Permit Required,See Seller's Disclosure

Additional Information

Elementary School Sigel Elem. Comm. Ed. Center
Jr. High School Fanning Middle Community Ed.
Sr. High School Vashon High
Association Fee $0 /None
Architecture Historic
Construction Brick
Garage Spaces 1
Carport Spaces 0
Basement Description Concrete,Full,Storage Space,Walk-Out Access
Fireplace Type Bedroom,Decorative,Family Room
Fireplace Location
Lot Dimensions 41x132
Special Areas
Cooling Ceiling Fan(s),Central Air,Dual
Sewer Public Sewer Sewer
Heating Forced Air,Natural Gas
Water Public
Heat Source
Kitchen
Appliances Dishwasher,Disposal,Ice Maker,Free-Standing Gas Oven
Dining
Interior Decor Ceiling Fan(s),Coffered Ceiling(s),Crown Molding,Custom Cabinetry,Historic Millwork,Separate Dining
Property Tax $3,368

Map Location

Room Dimensions

Room Dimensions (sq.rt)
Living Room (Level-Main) 15 x 15
Dining Room (Level-Main) 15 x 12
Kitchen (Level-Main) 15 x 12
Bedroom (Level-Second) 14 x 14
Bedroom 2 (Level-Upper) 12 x 12
Bedroom 3 (Level-Upper) 15 x 12
Bathroom (Level-Main) 6 x 6
Bathroom 2 (Level-Second) 6 x 6

Listing Courtesy of Quinlan Realty - [email protected]