Closed MLS# 26014229 31 Days on Market

8616 Joseph Avenue, Brentwood, MO 63144

Subdivision: Bompart Heights

List Price: $425,000

Login/Signup to see SOLD Price

3

Bedrooms

2

Baths

1,422

Area (sq.ft)

$N/A

Cost/sq.ft

2 Story

Type

Description

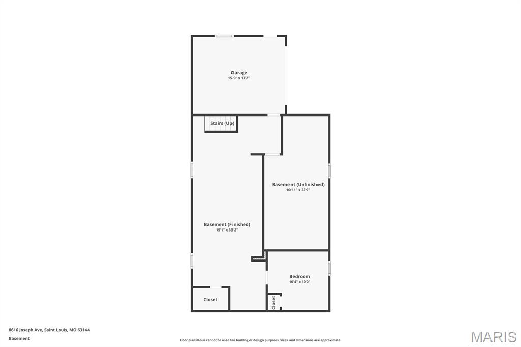
Check out this updated 3 bed, 2 full bath home in the heart of Brentwood! An addition on the back allows for all 3 beds and both bathrooms on the main, and an open-concept layout connecting the kitchen and front living room. Updated kitchen features modern cabinetry, granite counters, and a convenient breakfast bar. The primary suite includes a private full bath and walk-in closet, and the two other bedrooms in the addition are both spacious and offer great closet space. A combo walk-in pantry and laundry room next to the kitchen adds everyday convenience. The partially finished basement provides extra space for an additional family room or rec room area, plus an extra room that could be used as a sleeping area or home office. Plenty of storage space in the unfinished side of the basement, plus direct access to the garage and attached carport. Located just a couple blocks from Mark Twain Elementary and surrounded by over 3 miles of connected walking trails linking multiple parks, playgrounds, and other community attractions. A dog park, sand volleyball, basketball courts, outdoor roller hockey rink, and private pool & tennis club all in the neighborhood! Centrally located with easy access to transportation, shopping and restaurants!

Property Information

Original Price $ 425,000
Status Closed
MLS# 26014229
Bedrooms 3
Full baths 2
Half baths 0
Main Floor Full Baths 2
Sq. Ft. Above 1,422
Lot Size 0
Acres 0
Subdivision Bompart Heights
Municipality Brentwood
School District Brentwood
County St Louis
Property Type Residential
Style 2 Story
Style Description
Transaction Type
Special Conditions Standard
Type
Building Exterior Amenities
Building Style Bungalow
Ownership Private
Special Description Standard
Appliances Some Gas Cooktop,Dishwasher,Disposal,Microwave,Electric Oven,Refrigerator,Gas Water Heater
Miscellaneous
Disclosures Flood Plain No,Lead Paint,Occupancy Permit Required,Seller Property Disclosure
Age 0
Sewer Main Size Public Sewer
Water Main Size Public
Conditions Flood Plain No,Lead Paint,Occupancy Permit Required,Seller Property Disclosure

Additional Information

Elementary School Mark Twain Elem.
Jr. High School Brentwood Middle
Sr. High School Brentwood High
Association Fee None
Architecture Bungalow
Construction Brick,Vinyl Siding
Garage Spaces 1
Carport Spaces 1
Basement Description Block,Concrete,Partially Finished,Sleeping Area,Sump Pump,Walk-Out Access
Fireplace Type
Fireplace Location
Lot Dimensions
Special Areas
Cooling Central Air,Wall Unit(s)
Sewer Public Sewer Sewer
Heating Forced Air
Water Public
Heat Source
Kitchen
Appliances Gas Cooktop,Dishwasher,Disposal,Microwave,Electric Oven,Refrigerator,Gas Water Heater
Dining
Interior Decor Breakfast Bar,Ceiling Fan(s),Custom Cabinetry,Granite Counters,Open Floorplan,Smart Thermostat,Walk-In Closet(s),Walk-In Pantry
Property Tax $4,173

Map Location

Room Dimensions

Room Dimensions (sq.rt)
Living Room (Level-Main) 21 x 12
Kitchen (Level-Main) 14 x 10
Primary Bedroom (Level-Main) 14 x 11
Laundry (Level-Main) N/A
Bedroom 2 (Level-Main) 13 x 10
Bedroom 3 (Level-Main) 13 x 10
Recreation Room (Level-Basement) 27 x 12
Bonus Room (Level-Basement) 10 x 10

Listing Courtesy of Berkshire Hathaway HomeServices Select Properties - [email protected]