Pending MLS# 26018679 2 Days on Market

1486 Brittany Cove, Cottleville, MO 63304

Subdivision: Brittany Place

List Price: $300,000

3

Bedrooms

3

Baths

1,174

Area (sq.ft)

$N/A

Cost/sq.ft

1 Story

Type

Description

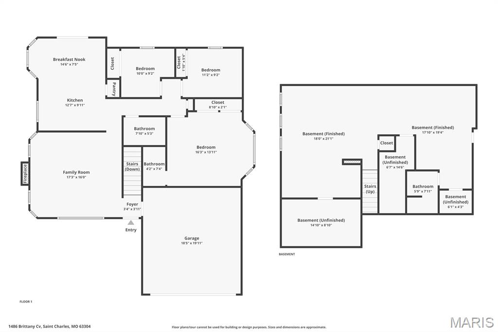
Beautiful ranch home in sought-after Brittany Place, ideally located within walking distance to Mid Rivers shopping and just minutes from Downtown Cottleville, with convenient access to Highways 364, 94, and I-70. This 3-bedroom, 3-bath home offers a spacious and functional main level with plenty of room for everyday living and entertaining. The finished lower level features a large rec area and a full bathroom, creating the perfect space for guests, hobbies, or additional living. Situated on a corner lot on a quiet dead-end street, the outdoor space includes a patio ideal for relaxing or hosting. Fresh, functional, and ready for its next owner.

Property Information

List Price $ 300,000
Original Price $ 300,000
Status Pending
MLS# 26018679
Bedrooms 3
Full baths 3
Half baths 0
Main Floor Full Baths 3
Sq. Ft. Above 1,174
Lot Size 0
Acres 0
Subdivision Brittany Place
Municipality Cottleville
School District Francis Howell R-III
County St Charles
Property Type Residential
Style 1 Story
Style Description
Transaction Type
Special Conditions Listing As Is
Type
Building Exterior Amenities
Building Style Traditional
Ownership
Special Description Listing As Is
Appliances Some
Miscellaneous
Disclosures Seller Property Disclosure
Age 0
Sewer Main Size Public Sewer
Water Main Size Public
Conditions Seller Property Disclosure

Additional Information

Elementary School Warren Elem.
Jr. High School Saeger Middle
Sr. High School Francis Howell Central High
Association Fee None
Architecture Traditional
Construction Concrete
Garage Spaces 2
Carport Spaces 0
Basement Description 8 ft + Pour,Bathroom,Partially Finished,Full,Sump Pump
Fireplace Type Living Room,Wood Burning
Fireplace Location
Lot Dimensions 71/106/127/100
Special Areas
Cooling Central Air
Sewer Public Sewer Sewer
Heating Forced Air,Natural Gas
Water Public
Heat Source
Kitchen
Appliances
Dining
Interior Decor Breakfast Room,Eat-in Kitchen,Kitchen/Dining Room Combo,Pantry
Property Tax $3,537

Map Location

Room Dimensions

Room Dimensions (sq.rt)
Primary Bedroom (Level-Main) 16 x 14
Bedroom (Level-Main) 10 x 9
Bedroom (Level-Main) 11 x 9
Breakfast Room (Level-Main) 14 x 8
Kitchen (Level-Main) 12 x 8
Great Room (Level-Main) 21 x 16
Family Room (Level-Lower) 21 x 18
Recreation Room (Level-Lower) 16 x 11

Listing Courtesy of Berkshire Hathaway HomeServices Select Properties - [email protected]