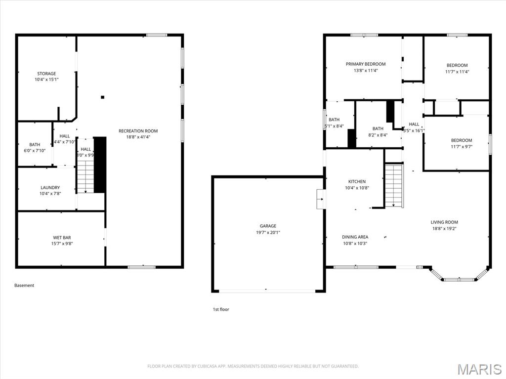
1605 Paradise Landing is an incredibly efficient and beautifully updated 3-bed, 3-bath home tucked away on a cul-de-sac! Enjoy energy savings with solar panels—the electric bill was just $9 in March, and total monthly utilities average under $100. Major updates already done for you, including a new roof, furnace/heat pump A/C, water heater, front windows, flooring, and appliances. The open floor plan offers great flow for everyday living and entertaining, featuring a custom dining buffet/sideboard—perfect for a coffee bar or serving space. The finished basement expands your living area with a rec space and a unique custom saloon-themed bar. Step outside to a fenced yard with a shed and plenty of room to relax or play. Complete with a 2-car garage and conveniently located near shopping, dining, and highways—this home truly checks all the boxes!
| Room | Dimensions (sq.rt) |
|---|---|
| Living Room (Level-Main) | 19 x 19 |
| Dining Room (Level-Main) | 11 x 10 |
| Kitchen (Level-Main) | 10 x 11 |
| Bedroom (Level-Main) | 12 x 10 |
| Bathroom (Level-Main) | 8 x 8 |
| Bedroom 2 (Level-Main) | 12 x 11 |
| Primary Bedroom (Level-Main) | 14 x 11 |
| Primary Bathroom (Level-Main) | 5 x 8 |
| Recreation Room (Level-Lower) | 41 x 19 |
| Storage (Level-Lower) | 10 x 15 |
| Bathroom 3 (Level-Lower) | 6 x 7 |
| Laundry (Level-Lower) | 10 x 8 |
| Bonus Room (Level-Lower) | 16 x 10 |
Listing Courtesy of RE/MAX Results - [email protected]